GO Bond Project History/Archives
Visit the current project web pages for the most up-to-date information and renderings of the projects listed below.
Parks GO Bond Project History/Archives
Click on any of the links below to jump to a specific project, or scroll down to view the history of all Parks GO Bond projects.
Parks GO Bond projects
City Council agreed to Resolution 46-24 on February 7, 2024, approving a contract with Pavement Maintenance LLC to construct Crystal Lake Park in NW Cape Coral. Park amenities include a multi-use path, beach, scuba diving area, hill overlook, boat ramp, and kayak launch to Flagstone Canal, which connects to the North Spreader Waterway. The Groundbreaking Ceremony was held on February 23, 2024.










 - Copy (2).jpeg?t=202503190153370)




January 2026 Update
Oct 2025 Update

On February 21, 2024, the City Council approved Resolution 59-24, awarding the construction bid for Festival Park to Burke Construction Group. This park's development intends to provide festival grounds for large events and an outdoor concert venue. Proposed park improvements include four multi-use sports fields with lighting and an amphitheater with a grass berm.












October 2023 Update

FINAL Site Plan (Rev. July 2022)

Updated Site Plan



January 2026 Update
Oct 2025 Update

October 2023 Update







FINAL Site Plan (July 2022)


Final Playground Layout/Theme




Updated Site Plan


For more information on the revised Tropicana Park concept plans, please visit this presentation link.
*The use of space and storage areas by the Rowing Club and South Florida Canoe Kayak Club that are illustrated on the revised concept plan are contingent upon an agreement between the City and these non-profit clubs

January 2026 Update
October 2025 Update




Renderings of Completed Park










REMINDER: The information contained on this page is for ARCHIVE PURPOSES ONLY.
Please visit the project web pages for the most current information and renderings of the projects listed on this page.
February 2024 Update
City Council agreed to Resolution 46-24 on February 7, 2024, approving a contract with Pavement Maintenance LLC to construct Crystal Lake Park in NW Cape Coral. Park amenities include a multi-use path, beach, scuba diving area, hill overlook, boat ramp, and kayak launch to Flagstone Canal, which connects to the North Spreader Waterway. The Groundbreaking Ceremony was held on February 23, 2024.

October 2023 Update

FINAL Site Plan (Rev. July 2022)

Updated Site Plan

Original Concept Plan

February 2024 Update

October 2023 Update


Groundbreaking - 10/15/21

Aerial - Before construction

Aerial - January 2022
 - Copy (2).jpeg?t=202503190153370)
FINAL Site Plan (July 2022)

Updated Site Plan

Final Playground Layout/Theme


January 2026 Update

Oct 2025 Update

Aug 2025 Update

May 2024 Update

February 2024 Update
On February 21, 2024, the City Council approved Resolution 59-24, awarding the construction bid for Festival Park to Burke Construction Group. This park's development intends to provide festival grounds for large events and an outdoor concert venue. Proposed park improvements include four multi-use sports fields with lighting and an amphitheater with a grass berm.

October 2023 Update

Original Concept Plan









February 2024 Update

October 2023 Update

FINAL Site Plan (Rev. July 2022)

Updated Site Plan

Original Concept Plan


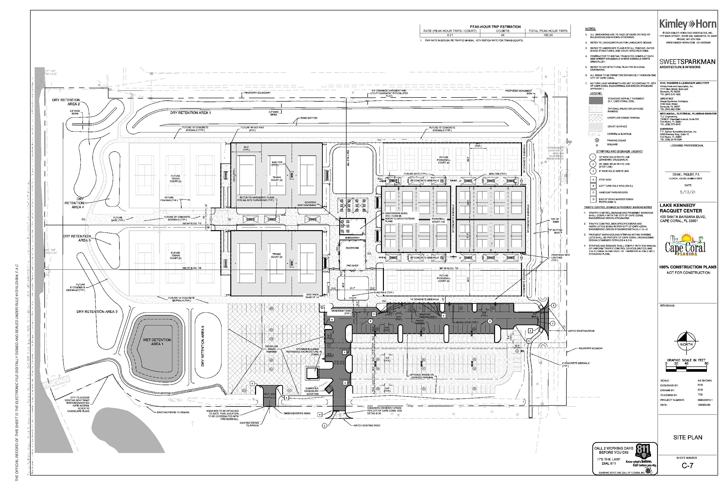
Lake Kennedy Racquet Center opened on August 28, 2024. Click here for facility details.



View previous project updates on the Parks GO Bond Project History/Archive Page.
February 2024 Update

October 2023 Update


View the presentation from the 8.23.23 COW Meeting

City Council approved the recommended bid package and corresponding contract for Charles Perry Partners, Inc. to construct Phases 1 and 2 of this project.
View Bid Recommendation Summary



May 2024 Update

FINAL Site Plan


View previous project updates on the Parks GO Bond Project History/Archive Page.
February 2024 Update

October 2023 Update


View the presentation from the 8.23.23 COW Meeting
July 2023 Update

City Council approved the recommended bid package and corresponding contract for Charles Perry Partners, Inc. to construct Phases 1 and 2 of this project.
View Bid Recommendation Summary
Original Concept Plan



January 2026 Update

Oct 2025 Update

Aug 2025 Update

February 2024 Update

October 2023 Update

FINAL Site Plan (Rev. July 2022)

Updated Site Plan

Original Concept Plan


February 2024 Update

October 2023 Update

FINAL Site Plan (July 2022)

Updated Site Plan

Final Playground Layout/Theme




March 2026 Update
Click here to view a timeline of construction photos from March 2025 - March 2026

January 2026 Update
Oct 2025 Update

Aug 2025 Update

May 2024 Update

February 2024 Update

October 2023 Update

FINAL Site Plan (Rev. July 2022)

Updated Site Plan

Concept Plan Approved by Council on 6-01-2020

For more information on the revised Tropicana Park concept plans, please visit this presentation link.
Original Concept Plan
*The use of space and storage areas by the Rowing Club and South Florida Canoe Kayak Club that are illustrated on the revised concept plan are contingent upon an agreement between the City and these non-profit clubs

January 2026 Update

October 2025 Update

Aug 2025 Update

February 2024 Update



October 2023 Update

Renderings of Completed Park

FINAL Site Plan (July 2022)

Original Plans








REMINDER: The information contained on this page is for ARCHIVE PURPOSES ONLY.
Please visit the project web pages for the most current information and renderings of the projects listed on this page.














